Investerare
SFAST 11.78 SEK (-0.51%)

Rydsdalsvägen 12

Rydsdalsvägen 11, Skövde

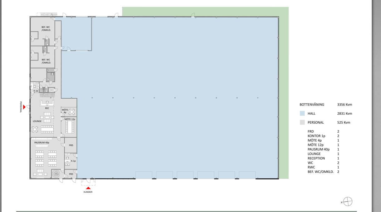
Rymlig och modern lokal 3 800 kvm med öppna ytor

Modern, nybyggd lokal med generösa ytor och hög standard, belägen i ett etablerat verksamhetsområde på Rydsdalsvägen 11 i Skövde. Lokalen erbjuder totalt 3 800 kvm, vilket inkluderar stora öppna hallytor samt moderna kontors- och personalutrymmen.

Fastigheten har stora, öppna ytor utan störande pelare och hög takhöjd, vilket skapar en flexibel miljö som lämpar sig för olika typer av verksamheter såsom lager, produktion, idrott, event eller showroom. Lokalen har även moderna kontor, mötesrum, omklädningsrum och pausutrymmen, vilket gör den komplett för både administrativ och operativ verksamhet.

Övrig information

Bra parkeringsmöjligheter.

Ytor

Lokalen erbjuder ljusa, öppna ytor med hög takhöjd och flexibel planlösning. Perfekt för verksamheter som behöver plats, volym och möjlighet att utforma ytan efter eget behov.

Bekvämligheter

  • - Besöksparkering/Parkering
  • - Dusch
  • - Fiberanslutning
  • - Kök/pentry
  • - Konferens
  • - Lastport
  • - Mötesrum
  • - Omklädningsrum
  • - Reception
  • - Serverrum
  • - Skyltläge
  • - WC/RWC

Specifikationer

Takhöjd: 8 m
Uppvärmning: Fjärrvärme
Ventilation: FTX

Omgivning

Fastigheten ligger i ett lugnt och öppet verksamhetsområde med omgivande grönområden och fri utsikt.
Området präglas av moderna industribyggnader och gott om utrymme, vilket skapar en trivsam och lättillgänglig miljö. I närområdet finns god service med flera butiker, restauranger och serviceföretag.
På bara några minuters bilväg ligger handelsområdena Stallsiken och Elins Esplanad, som erbjuder ett brett utbud av butiker, matställen och annan service.

Företag i närheten:
AF Fordonsvård Skövde
Rydsdal i Skövde AB
Parafon (Rockwool)

Kommunikationer

Läget på Rydsdalsvägen kombinerar hög tillgänglighet med bra synlighet.
Härifrån tar du dig snabbt ut på väg 26 och riksväg 49, och du når centrala Skövde på bara några minuter.
Tågstationen och E20 finns inom kort räckhåll, vilket ger utmärkta förutsättningar för både personal, kunder och transporter.

Dokument

Idéskiss - Planlösning

Ansvariga uthyrare

Claes Lennesiö
Bitr. Uthyrare/Marknadsförare